Продається будинок Тернопільська, Збаразький, Збараж (№ 22-403-729)
Ціна: 85 000 $

Характеристики
| Ціна: | 85 000 $ |
|---|---|
| № об'єкта: | 22-403-729 |
| Тип: | будинок |
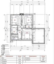
| Поверхів: | 2 |
| Спалень: | 3 |
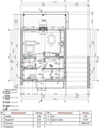
| Площа будинку: | 105 м2 |
| Ділянка: | 4.5 сот |
| Матеріал: | Газоблоки |
| Утеплення: | Зовнішнє |
| Штукатурка: | Покраска |
| Опалення: | Індивідуальне газове |
| Стан: | Сирий(без штукатурки) |
| Надвірні будівлі: | - |
| Огорожа: | + |
| Ділянка: | Рівна |
| Документи на будинок: | - |
| Документи на ділянку: | - |
| Світло: | + |
| Вода: | Свердловина |
| Септик: | + |
| Каналізація центральна: | - |
| Газ: | Підведено |
| Санвузол: | + |
Адреса: Тернопільська, Збаразький, Збараж
Продаж нового будинку у Збаражі, 18 км від Тернополя.
Площа ділянки - 4,5 сот.
Стіни з газобетону 300 мм , залізобетонні перекриття, залізобетонні сходи, система плоского даху - ПВХ-мембрана.
Стіни утеплені пінополістиролом ПСБ-35 товщиною 10 см з фінішним оздобленням.
Дах утеплений екструдованим пінополістиролом товщиною 15 см.
Змонтовані огорожі, благоустрій, хвіртка та ворота з автоматикою. Підключені усіх мережі ( газо- та електропостачання 10 кВт, свердловина та септик).
Встановлений конденсаційний котел Bosch.
Будинок світлий та теплий, з ергономічним та комфортним плануванням.
Всередині без ремонту.










