Продається квартира Тернопільська, Тернопіль, Старий Парк, Лисенка (№ 211-366-713)

Ціна: 56 900 $
Характеристики
| Ціна: | 56 900 $ |
|---|---|
| № об'єкта: | 211-366-713 |
| Кімнат: | 3 см/рз, студія |
| Поверх: | 5 / 6 |
| Площа: | 120.4 / 78 / 12 м2 |
| Санвузол: | 2 роздільний |
| Балкон: | балкон |
| індивідуальне опалення: | - |
| стан: | сира |
| газова колонка: | - |
| меблі: | - |
| вікна: | пластикові |
| гуртожиток: | - |
| не кутова: | - |
| будинок: | цегла |
| Гараж: | Гараж |
| Опалення: | Без опалення |
| бойлер: | - |
| Додатково: | новобудова |
Адреса: Тернопільська, Тернопіль, Старий Парк, Лисенка
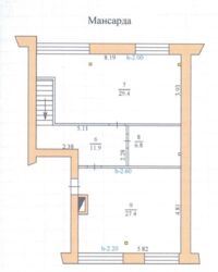
Продається дворівнева трьохкімнатна квартира загальною площею 120,4 м2. Перший рівень якісно відштукатурено (частину стін оздоблено стартовою шпаклівкою).
Встановлені масивні металеві двері (дизайн 3D) з нержавіючим порогом та протизламними накладками на замках.
В квартирі два санвузли (2,5 м2 та 7 м2), один з який повністю укомплектовано (унітаз + умивальник + дзеркало). Встановлений сучасні лічильники обліку води (з дистанційним передавачем даних) та електролічильник, електророзподільник. Виведено канали під інтернет та кабельне телебачення.
Будинок спроектовано під індивудуальне опалення (для турбованого чи димохідного котла).
Дах утеплено мінеральною ватою Rockwool (товщина 20 см), встановлено гідро- та паробарєр. Є можливість монтажу сонячних панелей для повної енергонезалежності.
Високий другий рівень (2 – 2,7 м). Є один великий балкон (6 м2, в техпаспорті враховані лише 1,5 м2). Поруч з квартирою є комора (5 м2, не включено в загальну площу).
Квартира продається з будівельним реманентом та матеріалами для водорозподілу й каналізації.
Тип объекта: Квартира;Тип дома: Жилой фонд 2001-2010-е;Тип стен: Кирпичный;Планировка: Многоуровневая;Санузел: 2 и более;Отопление: Индивидуальное газовое;Ремонт: После строителей;Меблирование: Нет;Комфорт: Балкон, лоджия, Хоз. помещение, кладовка;Коммуникации: Центральная канализация, Электричество, Газ, Центральный водопровод;Инфраструктура (до 500 метров): Центр города, Детский сад, Парк, зелёная зона, Детская площадка, Отделение почты, ЖД станция, Магазин, киоск, Остановка транспорта;Ландшафт (до 1 км.): Парк;
За окрему плату (12000 у.о.) можлива купівля цегляного гаражу в кооперативі «Військовик» по вул. Лозовецька (11 хв пішки) . Площа: 42 м2, оглядова яма, повноцінний цокольний поверх, погріб, утеплений дах, високі ворота (2,7 м). Гараж з документами (право власності+техпаспорт, див. на фото 3, та фото 4)


















